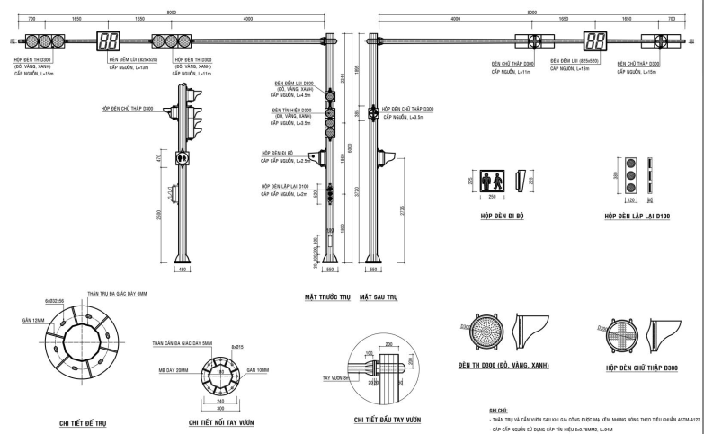
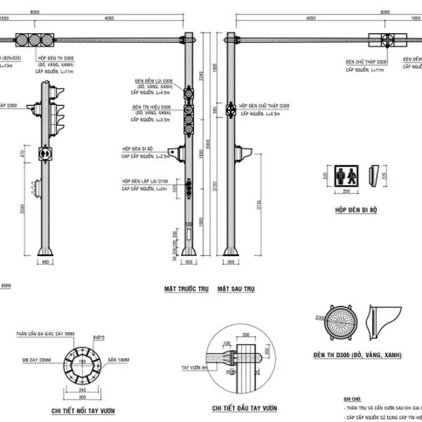
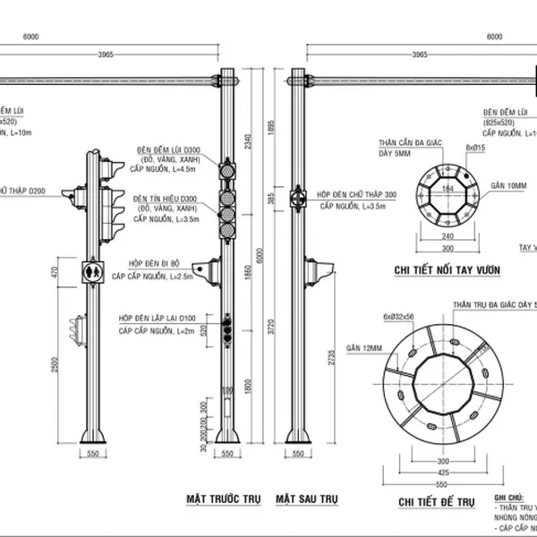
Trụ THGT là một phần rất quan trọng trong việc điều khiển giao thông đô thị. Tùy theo tình hình thực tế của mỗi con đường giao nhau lớn hay nhỏ có bao nhiêu ngã rẻ để lên phương án thiết kế trụ THGT phù hợp
sau đây là một số hình ảnh bản vẽ thiết kế trụ THGT
và còn nhiều bản vẽ khác liên quan. Nếu bạn cần bản vẽ trụ đèn thgt vui lòng liên hệ hoặc để lại email chúng tồi sẽ gửi cho các bạn nhé.
Vì Sự Thành Công Của Bạn!
Xin vui lòng liện hệ 0918 366 324 để được phục vụ bạn nhé!






                                    
                                    
                                    
                                    
                                    
                                    
                                    
                                    
Xem thêm