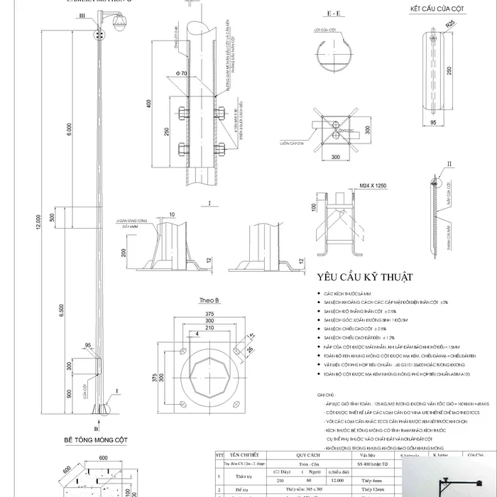
Đặt điểm, mô tả trụ đèn bát giác VNL chiều dài 4m – 11m
- Trụ Đèn được tính toán thiết kế chịu được áp lực gió đến 125daN/m2 (tương đượng tốc độ gió 45m/s), các hệ số ảnh hưởng khác bằng 1. Đối với dạng địa hình và vùng gió phức tạp hơn, trụ sẽ được tính toán thiết kế riêng theo từng yêu cầu đặt hàng.
- Vật liệu để chế tạo Trụ Đèn
Trụ Đèn sau khi sản xuất phù hợp với các yêu cầu của tiêu chuẩn JIS G3101 (SS400) được kiểm tra lại bởi Quatest III.
- Thân Trụ Đèn dưới 12m được chế tạo liền, không hàn nối ngang thân trụ và được hàn tự động trong môi trường bảo vệ khí CO2 trên một đường sinh dọc thân trụ đèn.
- Thiết kế và chế tạo phù hợp với các yêu cầu theo tiêu chuẩn BS 5649 (Anh),TR7, EN40(Châu Âu
- Trụ được hàn dọc tự động trong môi trường khí bảo vệ CO2, theo tiêu chuẩn BS 5135, AWS D 1.1
- Tiêu chuẩn mạ kẽm nhúng nóng
- Trụ đèn được mạ kẽm nhúng nóng, phù hợp với tiêu chuẩn BS 729, ASTM A 123. Chiều dày lớp mạ tối thiểu trên một mặt là 65um(450 g/m2) đối với thép tấm có độ dày tỳ 3 đến 5 mm.
- Trụ đèn được bảo vệ chống oxi hóa bằng nhúng kẽm nóng phù hợp tiêu chuẩn BS729, ASTM A 123. Ngoài ra sau khi bảo vệ nhúng kẽm nóng, trụ đèn có thể sơn tĩnh điện với màu sắc theo yêu cầu khách hàng.

Xem thêm